Náš RC16 je pečeť a RC16-B je kombinované těsnění ve tvaru Y. Drážky z těchto dvou jsou stejné a mohou být nainstalovány v drážkách určených ML5514F a ISO3771.
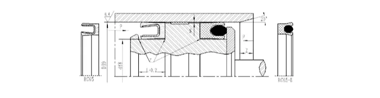
V dalším radiálním pružinovém napájecím těsnění, série RC65, je RC65 těsnění zástrčky a RC65-B je kombinované těsnění ve tvaru Y. Mají také stejný design drážky a mohou být nainstalovány v drážek určených ML5514F a ISO3771.
Těsnění RC16 a RC65 jsou složeny z pružin z nerezové oceli a vysoce funkčních plastů. Springy z nerezové oceli si mohou vybrat prameny ve tvaru písmene V a prameny ve tvaru O. Při použití RC16-B a RC65-B je nutné přiměřeně vybrat odpovídající elastomerový materiál.
Oba modely radiálních těsnění na energii na energii mají vysoký výkon, zaměnitelnost a širokou použitelnost. Jsou vhodné pro těsnění hydraulického a pneumatického vybavení za drsných pracovních podmínek a speciálních mediálních prostředí, jako je chemikálie, ropa, energie a další pole. Pružina z nerezové oceli poskytuje stabilní radiální sílu, která zajišťuje dlouhodobý utěsňovací účinek, zatímco kombinace vysoce výkonných plastových a elastomerových materiálů je vhodná pro vysoký tlak, vysokou rychlost a korozivní média. Standardizovaná návrh drážky zjednodušuje instalaci a údržbu a snižuje náklady na použití.
Funkce a aplikace produktu:
Společné rysy radiálních těsnění na energii:
1. Lze použít pro vrácení, otáčení (otočné) a statické těsnění;
2. použitelné na téměř všechny tekutiny a chemická média;
3. Vynikající těsnicí výkon pro těsnění s vysokým a nízkým tlakem a vakuové těsnění;
4. Nízké tření, malý počáteční odpor, hladký pohyb, bez plíží;
5. Dlouhá životnost může být použita pro mazací těsnění bez oleje;
6. K dispozici je řada materiálů, které se přizpůsobí rychlým změnám teploty a různých složitých pracovních podmínkách;
7. Žádné znečištění média při kontaktu s oběhem potravin a medicíny;
8. Lze sterilizovat, téměř žádný limit úložiště.
RC16
Platné pracovní podmínky
| Tlak MPA | Rychlost m/s | Teplota ℃ | Střední | ||
| RC16 <40 | RC16-B <80 | <10 | RC16 -200 ~+250 | RC16 -B -35 ~+250 | Téměř všechna média |
Výběr materiálu
1. Odpovídající materiály O-kroužku mohou být: R01 nitrilní guma (NBR), R02 Fluororubber (FKM) atd.
2. Těsné kroužek Materiály: PTFE1, PTFE2, PTFE3, PTFE4, UPE, PK1, PK2 atd.
3. nerezové pružiny z nerezové oceli lze vybrat z pramenů ve tvaru O a pramenů ve tvaru písmene V.
Příklad objednávání
RC16-40-PTFE4+V Průměr hřídele 40, těsnicí kroužek je PTFE4, pružina z nerezové oceli je pružina ve tvaru písmene V
Průměr hřídele RC16-B-40-PTFE4+R02 je 40, těsnicí kroužek je PTFE4, odpovídající O-kroužek je fluororubber
Tabulka parametrů specifikace (k dispozici je jakákoli velikost v rozsahu parametrů)
| DF8 | Dh9 | L+0,2 | SMAX (<20MPA) | SMAX (<40MPA) | ZMIN | Rmax |
| 4 ~ 9,9 | D+2,9 | 2.4 | 0.08 | 0.05 | 0,8L | 0.4 |
| 10 ~ 19,9 | D+4,5 | 3.6 | 0.10 | 0.07 | 0.4 | |
| 20 ~ 39,9 | D+6,2 | 4.8 | 0.15 | 0.08 | 0.6 | |
| 40 ~ 119,9 | D+9.4 | 7.1 | 0.20 | 0.10 | 0.8 | |
| 120 ~ 1000 | D+12.2 | 9.5 | 0.25 | 0.12 | 0.8 |
Instalace těsnění pánve: Obecně použijte otevřenou drážku a pro instalaci uzavřené drážky viz instalaci těsnění pánve.
Tabulka velikosti specifikace (požadované specifikace nejsou v této tabulce, kontaktujte prosím naši společnost, můžeme dodávat produkty až do 1600 mm.)
RC65
Platné pracovní podmínky
| Tlak MPA | Rychlost m/s | Teplota ℃ | Střední | ||
| RC65 <40 | RC65-B <80 | <10 | RC65 -200 ~+250 | RC65 -B -35 ~+250 | Téměř všechna média |
1. Odpovídající materiály O-kroužku mohou být: R01 nitrilní guma (NBR), R02 Fluororubber (FKM) atd.
2. Těsné kroužek Materiály: PTFE1, PTFE2, PTFE3, PTFE4, UPE, PK1, PK2 atd.
3. nerezové pružiny z nerezové oceli lze vybrat z pramenů ve tvaru O a pramenů ve tvaru písmene V.
Příklad objednávání
RC65-40-PTFE4+V Průměr válce 40, těsnicí kroužek je PTFE4, pružina z nerezové oceli je pružina ve tvaru písmene V
RC65-B-40-PTFE4+R02 Průměr válce je 40, těsnicí kroužek je PTFE4, odpovídající O-kroužek je fluororubber
Tabulka parametrů specifikace (k dispozici je jakákoli velikost v rozsahu parametrů)
| Dh9 | DF8 | L+0,2 | SMAX (<20MPA) | SMAX (<40MPA) | ZMIN | Rmax |
| 6 ~ 13,9 | D-2.9 | 2.4 | 0.08 | 0.05 | 0,8L | 0.4 |
| 14 ~ 24,9 | D-4,5 | 3.6 | 0.10 | 0.07 | 0.4 | |
| 25 ~ 45,9 | D-6.2 | 4.8 | 0.15 | 0.08 | 0.6 | |
| 46 ~ 124,9 | D-9.4 | 7.1 | 0.20 | 0.10 | 0.8 | |
| 125 ~ 999,9 | D-12.2 | 9.5 | 0.25 | 0.12 | 0.8 |



























Adresa
No.1 Ruichen Road, Dongliuting Industrial Park, Chengyang District, Qingdao City, Shandong Province, Čína
Tel
E-mailem